El nuevo edificio estará ubicado junto al centro médico, contará con una planta dedicada exclusivamente a las salas de velatorio y el resto del espacio queda como disponible para la futura ampliación del consultorio.
El alcalde, Pepe Carrasco, informa que el proyecto ya cuenta con el visto bueno de Cultura, por lo que desde el Ayuntamiento se va a librar el presupuesto necesario para licitar su construcción.
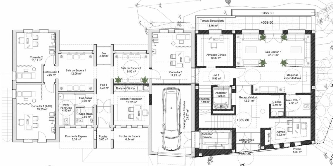
Dotar al casco histórico de un espacio para velatorios es una de las prioridades del equipo de gobierno de Casares que trabaja en la próxima construcción de un nuevo edificio junto al Consultorio Médico.
El alcalde, Pepe Carrasco, ha informado que el proyecto, que ya está finalizado, cuenta con el visto bueno y autorización de la delegación de Cultura de la JJAA, uno de los principales escollos para las obras en el casco histórico, por lo que se ha dado un gran avance para su construcción. Y el próximo paso, en el que trabaja actualmente el Ayuntamiento, es librar el presupuesto necesario para adjudicarlo cuanto antes.
El nuevo edificio estará ubicado entre el Consultorio Médico y el supermercado. Contará con dos salas de velatorio en la planta -1, una sala de tanatopraxia, espacios comunes y aseos públicos. La zona estará conectada con escaleras y un ascensor a la sala de recepción d☑️el velatorio en la planta a ras de calle, que contará con espacio suficiente para ampliar el Centro de Salud, al que estará conectado dotándolo de nuevas estancias y una gran sala de espera. Además cuenta con una planta en el sótano donde se ubicaría el cuarto técnico para las instalaciones del edificio
La construcción de un espacio exclusivo para velar a los difuntos en el casco histórico es uno de los proyectos previstos en el programa del equipo de gobierno local, ya que supone una necesidad para la población que actualmente utiliza para velatorios la antigua Casa de la Cultura, sobre el Hogar del Pensionista.
Precisamente en la renovación de este edificio del Peñón Roao también está trabajando el Ayuntamiento, para convertirlo en un espacio dedicado íntegramente a los mayores que, conectando sus tres plantas con un ascensor, acogerá la Escuela de Memoria y Neurocognitova, un espacio para actividades psicomotrices, las cocinas del comedor social y otras dependencias para recreo de los mayores del municipio.















